Mountford Road, Shirley
For Sale | 3 BedProperty Summary
A spacious and very well presented detached family home offering accommodation comprising a spacious lounge, re-fitted kitchen/diner, ground floor shower room/utility, three bedrooms, family bathroom, West facing rear garden, garage and generous driveway
Full Details
A spacious and very well presented detached family home offering accommodation comprising a spacious lounge, re-fitted kitchen/diner, ground floor shower room/utility, three bedrooms, family bathroom, West facing rear garden, garage and generous driveway
Shirley is home to a host of leisure and retail facilities. For shopping, Sears Retail Park and Parkgate are packed with an array of popular major retail names, and Shirley high street has a good variety of independently run outlets. Just minutes away you can enjoy the convenience of gymnasiums along with a choice of large supermarkets like Waitrose, Asda, Sainsburys, Aldi and Tesco. Food lovers are spoilt for choice, within walking distance there is a diverse mix of cultural tastes to experience, from fine dining restaurants through to numerous cafés and bars. Local schools include Blossomfield Infant and Nursery School, Haslucks Green Junior School, Our Lady of the Wayside Catholic Primary School, Tudor Grange Primary Academy St James, Light Hall Secondary School, Tudor Grange Academy and Alderbrook School and Sixth Form to name but a few. Commuters are particularly served well, with regular bus and train services and easy access to Junction 4 of the M42
Property Frontage
The property is set back from the road behind a generous tarmacadam driveway providing ample off road parking and a UPVC triple glazed door leading into
Entrance Hallway
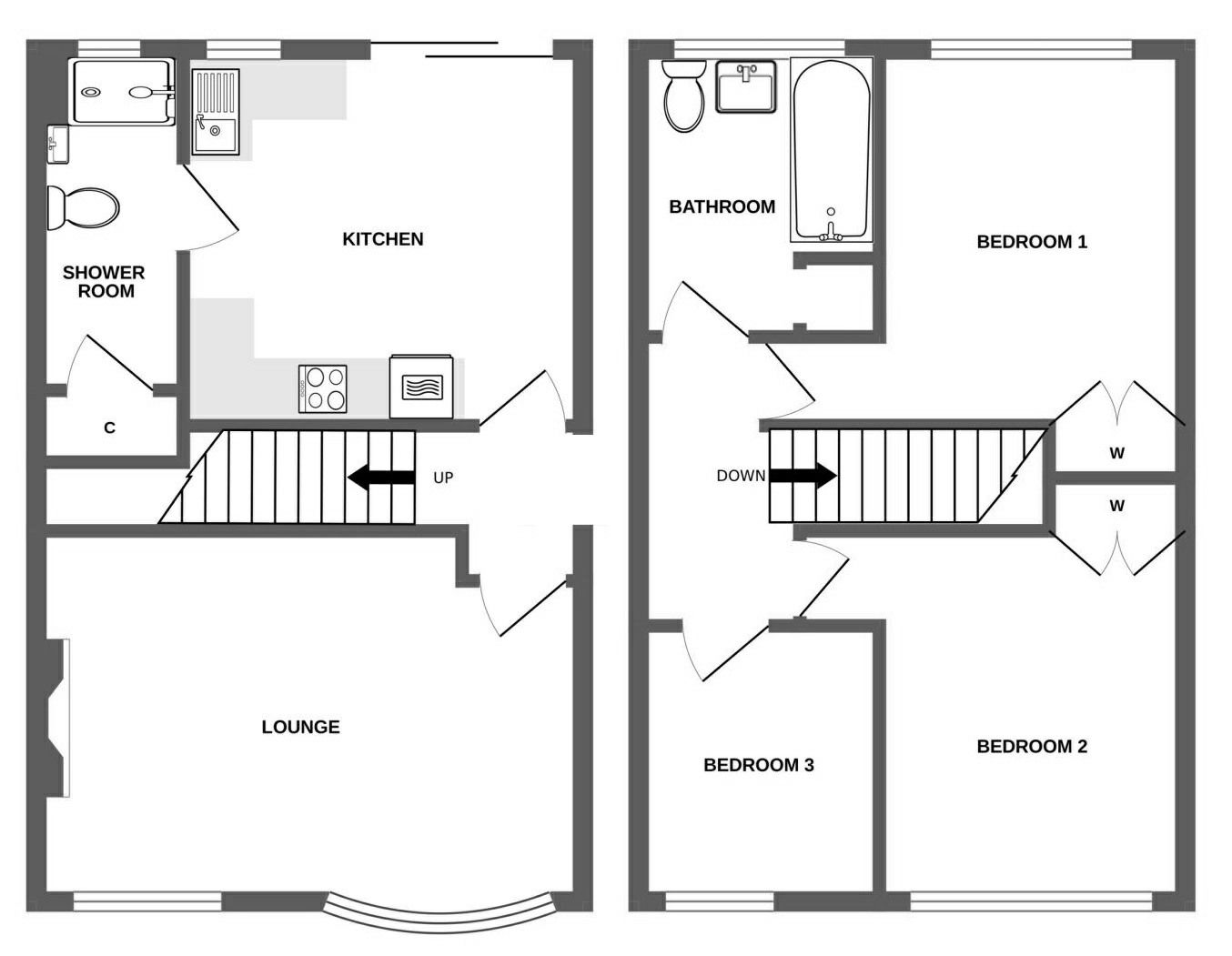
With ceiling light point, laminate flooring, stairs leading to the first floor accommodation and door leading off to
Spacious Lounge to Front - 4.8m x 3.3m (15'8" x 10'9")
With a triple glazed bow window and further triple glazed window to front elevation, wall mounted vertical radiator, ceiling light point and feature inset electric fire
Re-Fitted Kitchen/Diner to Rear - 3.5m x 3.3m (11'5" x 10'9")
Being re-fitted with a range of wall, base and drawer units with a work surface over incorporating a composite sink and drainer unit with mixer tap over. Four ring induction hob with extractor hood over, eye level double electric oven, metro tiling to splash back areas, wood effect flooring, radiator, ceiling light point, triple glazed window to the rear aspect, triple glazed sliding patio doors to rear garden and door to
Ground Floor Shower Room/Utility - 3.1m x 1.2m (10'2" x 3'11")
Being fitted with a white suite comprising of a shower enclosure with overhead monsoon soaker, vanity wash hand basin and a low flush W.C. Obscure triple glazed window to rear, under stairs storage cupboard, heated towel rail, metro tiling to splash prone areas, wood effect flooring, ceiling spot lights and space and plumbing for washing machine with work surface over
Landing
With a ceiling light point and door to
Bedroom One to Rear - 3.9m x 3.4m (12'9" x 11'1")
With triple glazed window to rear elevation, radiator, built in double wardrobe and ceiling light point
Bedroom Two to Front - 3.4m x 3.3m (11'1" x 10'9")
With triple glazed window to front elevation, radiator, built in wardrobe and vanity area, access to loft space and ceiling light point
Bedroom Three to Front - 2.4m x 2.2m (7'10" x 7'2")
With triple glazed window to front elevation, radiator and ceiling light point
Family Bathroom to Rear - 2.5m x 2.1m (8'2" x 6'10")
Being fitted with a white suite comprising of a panelled bath with thermostatic shower over and glazed screen, vanity wash hand basin and a low flush W.C. Storage cupboard, heated towel rail, tiling to splash prone areas, ceiling light point and an obscure triple glazed window to the rear elevation
West Facing Rear Garden
With paved patio areas, greenhouse, walls and panelled fencing to boundaries, external lighting, cold water tap and gated side access leading to
Garage - 4.9m x 2.5m (16'0" x 8'2")
With an up and over door for vehicular access, power and light points
Tenure
We are advised by the vendor that the property is freehold, but are awaiting confirmation from the vendor's solicitor. We would strongly advise all interested parties to obtain verification through their own solicitor or legal representative. EPC supplied by vendor. Council tax band D
PROPERTY MISDESCRIPTIONS ACT

















