Station Road, Wythall
For Sale | 5 BedProperty Summary
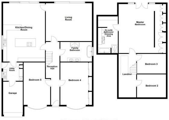
A beautifully presented and substantially extended detached family home situated in a sought after semi-rural location with open views to rear. The property benefits from gas underfloor heating throughout the ground floor and offers accommodation comprising a spacious lounge, superb open plan family kitchen/diner, utility room, luxury five piece ground floor family bathroom, two large double ground floor bedrooms, three further double first floor bedrooms, four piece en-suite bathroom with dressing area, side garage, ample driveway parking and a stunning large mature Southerly facing rear garden overlooking fields
Full Details
A beautifully presented and substantially extended detached family home situated in a sought after semi-rural location with open views to rear. The property benefits from gas underfloor heating throughout the ground floor and offers accommodation comprising a spacious lounge, superb open plan family kitchen/diner, utility room, luxury five piece ground floor family bathroom, two large double ground floor bedrooms, three further double first floor bedrooms, four piece en-suite bathroom with dressing area, side garage, ample driveway parking and a stunning large mature Southerly facing rear garden overlooking fields
Wythall and Hollywood are superb locations providing good transport links to Birmingham City Centre and the M42. Nearby railway stations include Wythall and Whitlocks End offering commuter services between Birmingham and Stratford-Upon-Avon. Local schooling includes Coppice Primary School, Meadow Green Primary School, Woodrush Senior School and Sixth Form Education facilities subject to confirmation from the Education Department. There is the added benefit of local shops at nearby Drakes Cross Parade, May Lane, Station Road and easy road access along the Alcester Road leading to the Maypole island with Sainsburys supermarket.
Property Frontage
The property is set back from the road behind a wooden gate leading to a gravel driveway providing ample off road parking with hedging to side boundaries and a feature canopy porch with a part double glazed front door leading into
Entrance Hallway
With Amtico flooring with under floor heating, ceiling light points, stairs leading to the first floor accommodation and doors leading off to
Spacious Lounge to Rear - 6.2m x 4.85m (20'4" x 15'11")
With two ceiling light points, feature inset gas fire, under floor heating, large double glazed sliding patio door leading out to the rear garden and door into
Superb Open Plan Family Kitchen/Diner to Rear - 7.8m x 5.59m (25'7" x 18'4")
Being fitted with a comprehensive range of wall, drawer and base units with granite work surfaces over and an inset sink with mixer tap. Central island with a four ring induction hob with extractor canopy over, eye level double oven and grill and integrated microwave, dishwasher and wine cooler. Tiled flooring with under floor heating, spot lights to ceiling, double glazed window to side, large double glazed sliding patio door leading out to the rear garden and door to
Utility Room - 2.64m x 2.46m (8'8" x 8'1")
Fitted with a range of wall and base units with a work surface over incorporating a sink and drainer unit with mixer tap. Space and plumbing for washing machine, UPVC double glazed door and window to side, tiled flooring, ceiling light point and door to garage
Spacious Bedroom Four to Front - 6.25m x 4.22m (20'6" x 13'10")
With double glazed bay window to front elevation with window seat, Amtico flooring with under floor heating, ceiling light points and a range of fitted wardrobes
Spacious Bedroom Five to Front - 6.25m x 3.53m max (20'6" x 11'7" max)
With double glazed bay window to front elevation with window seat, Amtico flooring with under floor heating, ceiling light points and a range of freestanding wardrobes and drawers
Luxury Five Piece Family Bathroom to Side - 4.22m x 2.64m (13'10" x 8'8")
Being fitted with a luxury five piece white suite comprising a feature freestanding bath with floor mounted tap and shower attachment, large walk in shower with thermostatic rainfall shower, twin feature wash hand basins and a low flush W.C. Tiling to walls, tiled flooring, obscure double glazed window to side, feature vertical radiator and spot lights to ceiling
Landing
With two ceiling light points, two large Velux roof windows to side, radiator and doors leading off to
Master Bedroom to Rear - 6.3m max x 6.25m max (20'8" max x 20'6" max)
With double glazed windows incorporating French doors with Juliet balcony with open views to rear, radiator, wall and ceiling light points, a comprehensive range of fitted wardrobes and drawers and door to
Four Piece En-Suite Bathroom to Side - 4.9m max x 2.64m (16'1" max x 8'8")
Being fitted with a four piece white suite comprising of a corner shower enclosure with thermostatic rainfall shower and additional shower attachment, bathtub with shower attachment, twin wall mounted wash hand basin and a low flush W.C. Complementary tiling to walls, tiled flooring with electric under floor heating, Velux roof window to side, ladder style radiator and dressing area with fitted drawers
Bedroom Two to Side - 3.86m x 3.07m (12'8" x 10'1")
With Velux roof window to side, radiator and ceiling light point
Bedroom Three to Side - 3.86m x 2.64m (12'8" x 8'8")
With Velux roof window to side, radiator, ceiling light point and fitted desk and wall storage units
Large Southerly Facing Rear Garden
The stunning rear garden is mainly laid to lawn with delightful views across open fields to rear. There are paved and decked seating terraces, feature pond, timber storage shed, mature hedging and fencing to boundaries, gated access to property frontage and a variety of mature trees, shrubs and bushes
Side Garage - 4.47m x 2.64m (14'8" x 8'8")
With an up and over door for vehicular access and courtesy door to utility
Tenure
We are advised by the vendor that the property is freehold. We would advise all interested parties to obtain verification through their own solicitor or legal representative. EPC supplied by vendor. Current council tax band – E
Property Misdescriptions Act
Smart Homes have not tested any equipment, fixtures, fittings or services mentioned and do not by these Particulars or otherwise verify or warrant that they are in working order. All measurements listed are given as an approximate guide and must be carefully checked by and verified by any Prospective Purchaser. These particulars form no part of any sale contract. Any Prospective Purchaser should obtain verification of all legal and factual matters and information from their Solicitor, Licensed Conveyancer or Surveyors as appropriate.













































