Streetsbrook Road, Solihull
For Sale | 5 BedProperty Summary
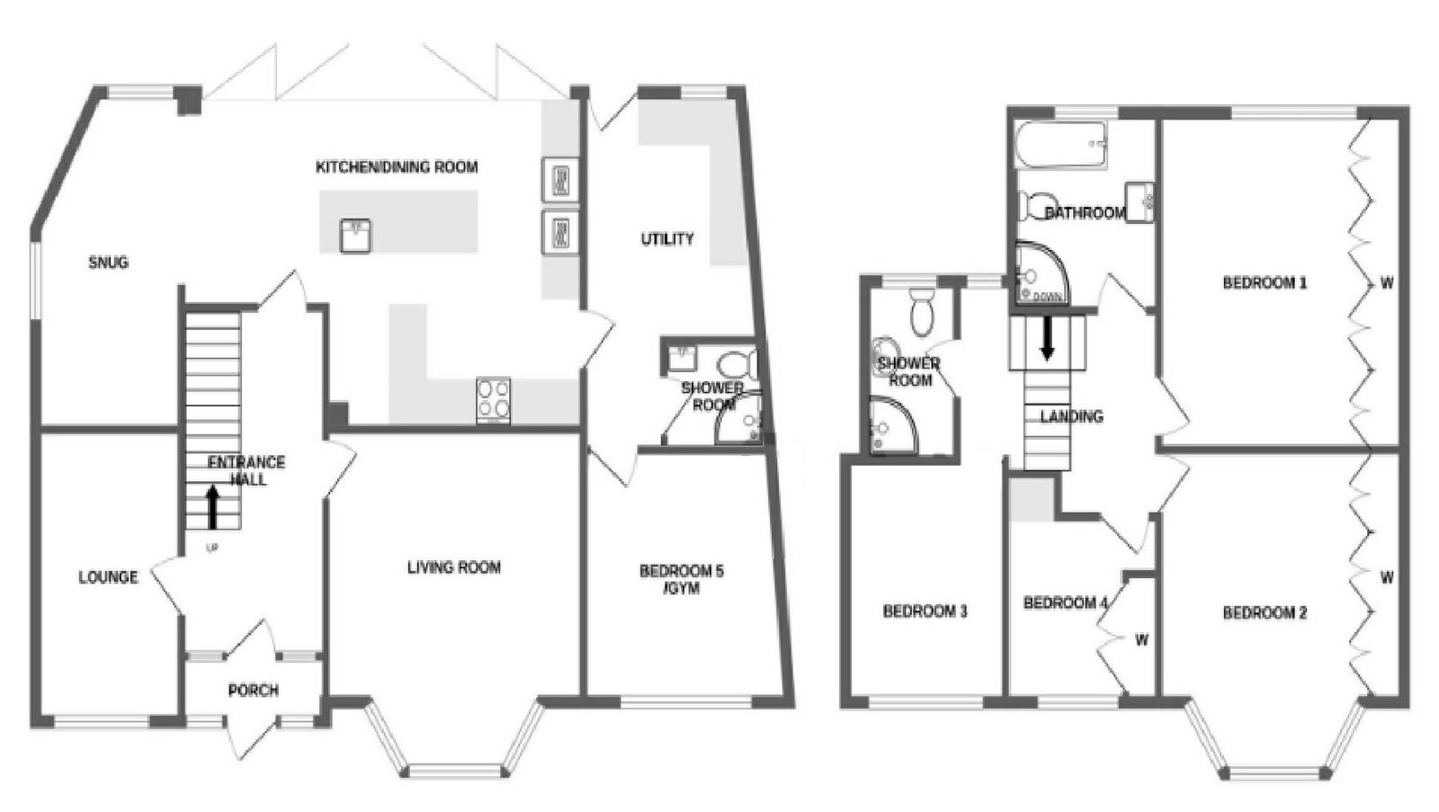
An imposing and beautifully presented five bedroom detached property benefiting from being totally renovated by the current owners and briefly affording two reception rooms, open plan kitchen/diner with family snug, downstairs shower room, utility room, first floor family bathroom and shower room, landscaped rear garden and in-and-out driveway
Full Details
An imposing and beautifully presented five bedroom detached property benefiting from being totally renovated by the current owners and briefly affording two reception rooms, open plan kitchen/diner with family snug, downstairs shower room, utility room, first floor family bathroom and shower room, landscaped rear garden and in-and-out driveway
Solihull is situated in the heart of England and is considered to be one of the most highly sought after residential areas in the country boasting a range of local amenities including excellent schools, colleges, parks, restaurants, bars and an excellent variety of shopping centres including Touchwood shopping centre and the new Resorts World. Solihull has convenient road networks linking the M42, M6, M40, M1 and M5 giving easy access to the NEC Arena, Birmingham International Airport and Railway Station.
Property Frontage
Enclosed Porch
Entrance Hall
Lounge/Office to Front - 3.8m x 2.3m (12'5" x 7'6")
Living Room to Front - 4.3m x 4m (14'1" x 13'1")
With double glazed bay window to front elevation, wood effect flooring, radiator and ceiling light points
Superb Open Plan Family Kitchen/Diner to Rear - 8.9m max x 4.6m max (29'2" max x 15'1" max)
Being re-fitted with a range of wall, drawer and base units with complementary Silestone work surfaces over, sink and drainer unit with shower mixer tap, induction hob with feature extractor over and inset double electric oven. Integrated microwave and coffee machine, integrated dishwasher and fridge/freezer, breakfast bar, polished porcelain tiled flooring, feature vertical radiator, under cupboard lighting, spot lights to ceiling, double glazed windows to side and rear, double glazed bi-fold doors leading out to the rear garden and oak door to
Utility Room - 4.7m x 2.4m (15'5" x 7'10")
Fitted with a range of wall and base units with a work surface over incorporating a Belfast style sink and drainer unit with mixer tap. Space and plumbing for washing machine and tumble dryer, UPVC double glazed door and window to rear, Velux roof window, polished porcelain tiled flooring, vertical central heating radiator, ceiling spot lights and oak door to
Ground Floor Shower Room
Being fitted with a three piece white suite comprising of a corner shower enclosure with thermostatic rainfall shower, vanity wash hand basin and a low flush W.C. Complementary tiling to walls, tiled flooring, Velux roof window, extractor and spot lights to ceiling
Gym/Bedroom Five to Front - 3.2m x 3.1m (10'5" x 10'2")
With double glazed window to front elevation, wood effect flooring, feature vertical radiator, loft access and ceiling spot lights
Landing
With ceiling light point, obscure double glazed window to rear, loft hatch and doors leading off to
Bedroom One to Front - 4.5m x 3.2m (14'9" x 10'5")
With double glazed bay window to front elevation, fitted wardrobes, wood effect flooring, radiator and LED ceiling lights
Bedroom Two to Rear - 4.4m x 3.2m (14'5" x 10'5")
With double glazed window to rear elevation, feature radiator, fitted wardrobes and vanity area and ceiling light point
Bedroom Three to Front - 3.7m x 2.5m (12'1" x 8'2")
With double glazed window to front elevation, fitted wardrobes and vanity area, wood effect flooring, radiator and ceiling light point
Bedroom Four to Front - 3m x 2.4m (9'10" x 7'10")
With double glazed window to front elevation, wood effect flooring, fitted wardrobes and desk with drawers, radiator and ceiling light point
Re-Fitted Four Piece Family Bathroom to Rear - 2.6m x 2.3m (8'6" x 7'6")
Being re-fitted with a four piece white suite comprising a jacuzzi bath, corner shower enclosure with thermostatic shower over, vanity wash hand basin and a low flush W.C. Tiling to walls, obscure double glazed window to rear, feature vertical radiator and spot lights to ceiling
Re-Fitted Family Shower Room to Rear - 2.3m x 1.4m (7'6" x 4'7")
Being re-fitted with a three piece white suite comprising of a shower enclosure with thermostatic rainfall shower, vanity wash hand basin and a low flush W.C. Complementary tiling to walls, tiled flooring, LED mirror, obscure double glazed window to rear, ladder style radiator and spot lights to ceiling
Landscaped Rear Garden
Being mainly laid to lawn with wrap around terrace patio area, further timber decked area with pergola, timber storage shed, fencing to boundaries, gated access to property frontage and a variety of mature shrubs and bushes
Tenure
We are advised by the vendor that the property is freehold. We would advise all interested parties to obtain verification through their own solicitor or legal representative. EPC supplied by vendor. Current council tax band – F
Property Misdescriptions Act
Smart Homes have not tested any equipment, fixtures, fittings or services mentioned and do not by these Particulars or otherwise verify or warrant that they are in working order. All measurements listed are given as an approximate guide and must be carefully checked by and verified by any Prospective Purchaser. These particulars form no part of any sale contract. Any Prospective Purchaser should obtain verification of all legal and factual matters and information from their Solicitor, Licensed Conveyancer or Surveyors as appropriate.



































