Woodside Way, Solihull

For Sale | 4 Bed
£800,000
Added 09-04-2026

Property Summary

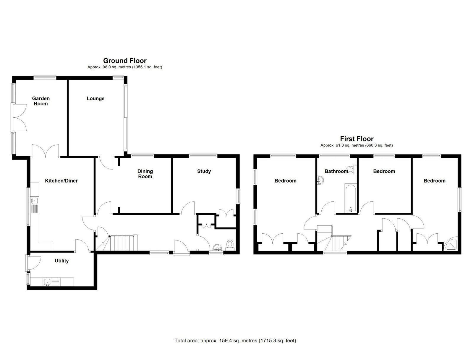
An architect designed three/four bedroom detached property situated on a very generous plot of 2/3 of an acre and offering fantastic potential with flexible living, three reception rooms, garden room, bespoke breakfast kitchen, utility room, guest WC, master bedroom with shower, family bathroom, rear garden, detached garage and off road parking

Full Details

An architect designed three/four bedroom detached property situated on a very generous plot of 2/3 of an acre and offering fantastic potential with flexible living, three reception rooms, garden room, bespoke breakfast kitchen, utility room, guest WC, master bedroom with shower, family bathroom, rear garden, detached garage and off road parkin

Solihull is situated in the heart of England and is considered to be one of the most highly sought after residential areas in the country boasting a range of local amenities including excellent schools, colleges, parks, restaurants, bars and an excellent variety of shopping centres including Touchwood shopping centre and the new Resorts World. Solihull has convenient road networks linking the M42, M6, M40, M1 and M5 giving easy access to the NEC Arena, Birmingham International Airport and Railway Station.

Property Frontage

The property is set back from the road behind lawned fore-gardens and block paved driveway providing off-road parking, extending to detached garage and paved pathway leading to a single glazed obscure door with matching window to side leading into:

Entrance Hall

With stairs rising to the first floor with useful under-stairs storage cupboard, wooden flooring, central heating radiator and doors radiating off to:

Guest WC

With low level flush WC, pedestal wash hand basin, obscure double glazed window to the side elevation, central heating radiator, wooden flooring and useful storage cupboards

Office to Front - 3.2m x 3m (10'5" x 9'10")

Having two double glazed windows to the side and front elevations, central heating radiator, ceiling light point and built-in storage cupboards

Reception Room Two to Side - 4.7m x 3m (15'5" x 9'10")

Having a double glazed window to the side elevation, central heating radiator, wooden flooring, range of bespoke built-in storage cupboards and shelving, ceiling light point and door leading through to:

Reception Room Three to Front - 5m x 3.9m (16'4" x 12'9")

Having double glazed sliding patio doors leading through to the front elevation with a terraced patio area, further double glazed door to the side elevation, living flame gas fire with marble hearth and inlay, ceiling light point, wooden flooring, three central heating radiators and door leading through to:

Garden Room to Rear - 4.8m x 3.2m (15'8" x 10'5")

Having double opening double glazed doors leading out to the rear garden with matching windows to either side, further double glazed window to the side elevation, central heating radiator, tiled flooring and ceiling light point

Breakfast Kitchen to Rear - 5.1m x 3.6m (16'8" x 11'9")

Having a range of wall, drawer and base units in a high gloss finish with granite work surfaces over and matching upstands, sink and drainer unit, Aga gas cooker, integrated dishwasher, Smeg four ring gas hob and freestanding cooker with feature AEG extractor over with glazed splashback, ceiling spot-lights, bespoke pantry area, double glazed window to the rear elevation and single glazed oak door leading through to: 

Utility Room to Rear - 4.2m x 2m (13'9" x 6'6")

Having a range of wall and base units in a high gloss finish with a roll-top laminate work surface over, sink and drainer unit, washing machine, tumble dryer, American style fridge freezer, cupboard housing the Worcester Bosch central heating boiler, complementary tiling to splashback areas, ceiling light point, central heating radiator, tiled flooring and single glazed door with matching window to the side leading out to the rear garden

Accommodation On The First Floor

Landing

Having a double glazed window to the side elevation, central heating radiator, two useful storage cupboards and doors leading off to:

Bedroom One to Front - 4.2m x 3.2m (13'9" x 10'5")

Having a double glazed window to the front elevation and double glazed window to the side elevation, corner shower cubicle with bi-folding door and thermostatic shower over, range of built-in wardrobes, central heating radiator and two ceiling light points

Bedroom Two to Side - 3.2m x 2.6m (10'5" x 8'6")

Having a double glazed window to the side elevation, central heating radiator, ceiling light point and a range of built-in wardrobes

Bedroom Three to Rear - 4.3m x 2.7m (14'1" x 8'10")

Having two double glazed windows to the rear elevation and further double glazed window to the side elevation, ceiling light point, central heating radiator and built-in wardrobes

Family Bathroom to Side - 3.2m x 1.9m (10'5" x 6'2")

Fitted with a white three piece suite comprising panelled bath with shower over, low level WC and pedestal wash hand basin, central heating radiator, ladder style radiator, storage cupboards, complementary tiling to walls, ceiling light point, loft hatch giving access to large boarded loft space and an obscure double glazed window to the side elevation 

Detached Garage - 5m x 3.2m (16'4" x 10'5")

Having a metal up-and-over garage door, electric power points, ceiling light point and cold water tap

Rear Garden

The rear garden is mainly laid to lawn with a terraced patio, further terraced patio, a variety of mature shrubs and trees and access to the detached garage 

Tenure

We are advised by the vendor that the property is freehold, but are awaiting confirmation from the vendor's solicitor. We would advise all interested parties to obtain verification through their own solicitor or legal representative. EPC supplied by Nigel Hodges. Current council tax band – G

PROPERTY MISDESCRIPTIONS ACT:

SMART HOMES have not tested any equipment, fixtures, fittings or services mentioned and do not by these Particulars or otherwise verify or warrant that they are in working order.  All measurements listed are given as an approximate guide and must be carefully checked by and verified by any Prospective Purchaser. These particulars form no part of any sale contract.  Any Prospective Purchaser should obtain verification of all legal and factual matters and information from their Solicitor, Licensed Conveyancer or Surveyors as appropriate.

Property Features

  • An Architect Designed Three/Four Bedroom Detached Property Offering Flexible Living
  • Generous Plot Of 2/3 Of An Acre
  • Three Reception Rooms
  • Garden Room
  • Bespoke Breakfast Kitchen
  • Utility Room & Guest WC
  • Master Bedroom With Shower
  • Family Bathroom
  • Rear Garden
  • Detached Garage & Off Road Parking


Mortgage Calculator

Stamp Duty Calculator