Yoxall Road, Shirley
For Sale | 3 BedProperty Summary
A three bedroom detached family home benefiting from planning approval for a large rear extension. Currently within Tudor Grange catchment area, offering no upward chain and with accommodation comprising a through lounge/diner, re-fitted kitchen, three bedrooms, re-fitted family bathroom, Southerly facing rear garden and driveway parking
Full Details
A three bedroom detached family home benefiting from planning approval for a large rear extension. Currently within Tudor Grange catchment area, offering no upward chain and with accommodation comprising a through lounge/diner, re-fitted kitchen, three bedrooms, re-fitted family bathroom, Southerly facing rear garden and driveway parking
Shirley is home to a host of leisure and retail facilities. For shopping, Sears Retail Park and Parkgate are packed with an array of popular major retail names, and Shirley high street has a good variety of independently run outlets. Just minutes away you can enjoy the convenience of gymnasiums along with a choice of large supermarkets like Waitrose, Asda, Sainsburys, Aldi and Tesco. Food lovers are spoilt for choice, within walking distance there is a diverse mix of cultural tastes to experience, from fine dining restaurants through to numerous cafés and bars. Local schools include Blossomfield Infant and Nursery School, Haslucks Green Junior School, Our Lady of the Wayside Catholic Primary School, Tudor Grange Primary Academy St James, Light Hall Secondary School, Tudor Grange Academy and Alderbrook School and Sixth Form to name but a few. Commuters are particularly served well, with regular bus and train services and easy access to Junction 4 of the M42.
Property Frontage
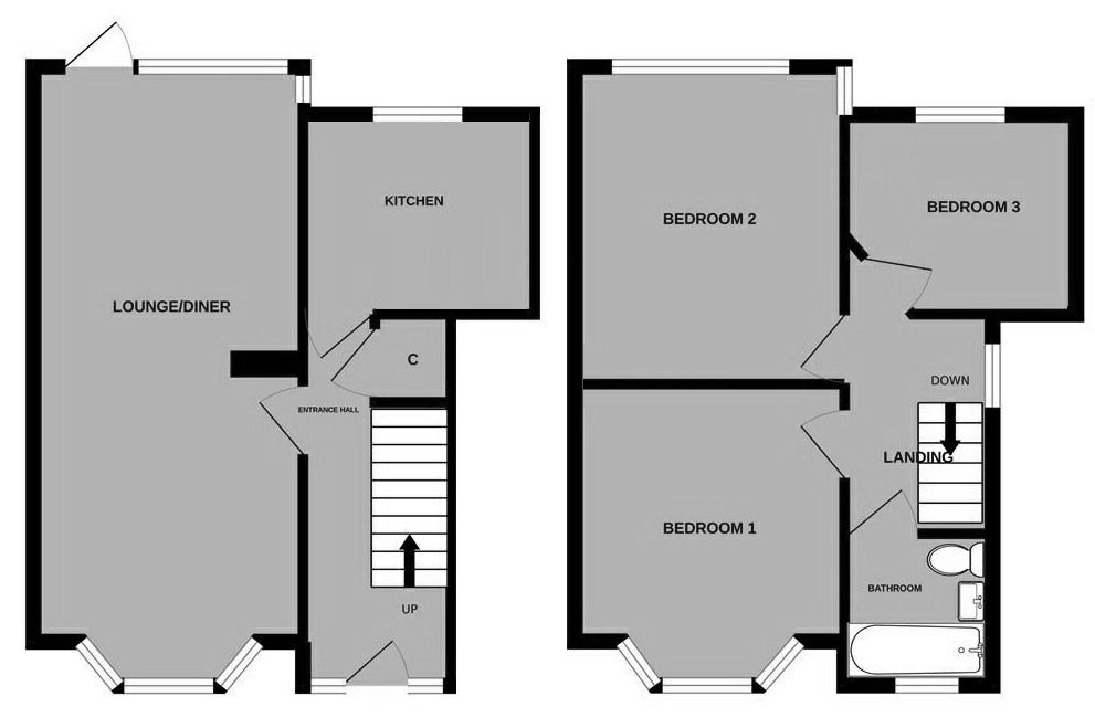
The property is set back from the road behind a block paved and stone chipped driveway providing off road parking extending to a UPVC double glazed door leading into
Entrance Hallway
With ceiling spot lights, radiator, stairs leading to the first floor accommodation with useful under-stairs storage cupboard and doors leading off to
Spacious Through Lounge/Diner - 6.81m x 2.84m (22'4" x 9'4")
With double glazed bay window to front elevation, double glazed bay window incorporating door leading out to the rear garden, two radiators, two ceiling light points and feature gas fireplace with marble hearth and wooden surround
Re-Fitted Kitchen to Rear - 2.49m x 2.01m (8'2" x 6'7")
Being re-fitted with a range of wall, drawer and base units with complementary work surfaces over, sink and drainer unit with mixer tap, four ring hob and inset electric oven. Space and plumbing for washing machine, space for fridge, wood effect flooring, ceiling light point, double glazed window to rear and double glazed door leading out to the side
Landing
With ceiling spot lights, double glazed window to side, loft hatch and doors leading off to
Bedroom One to Front - 3.48m x 2.9m (11'5" x 9'6")
With double glazed bay window to front elevation, radiator and ceiling light point
Bedroom Two to Rear - 3.38m x 2.9m (11'1" x 9'6")
With double glazed bay window to rear elevation, built in cupboard, radiator and ceiling light point
Bedroom Three to Rear - 2.46m max x 2.06m max (8'1" max x 6'9" max)
With double glazed window to rear elevation, built in storage and ceiling light point
Re-Fitted Family Bathroom to Front - 1.68m x 1.52m (5'6" x 5'0")
Being re-fitted with a three piece white suite comprising a tiled panelled bath with electric shower over and glazed screen, wall mounted vanity wash hand basin and a low flush W.C. Tiling to walls, wood effect flooring, obscure double glazed window to front, ladder style radiator and ceiling light point
Landscaped Southerly Facing Rear Garden
Being mainly laid to lawn with paved patio area, hedging and fencing to boundaries and gated access to property frontage
Tenure
We are advised by the vendor that the property is freehold. We would advise all interested parties to obtain verification through their own solicitor or legal representative. EPC supplied by vendor. Current council tax band – D
Property Misdescriptions Act
Smart Homes have not tested any equipment, fixtures, fittings or services mentioned and do not by these Particulars or otherwise verify or warrant that they are in working order. All measurements listed are given as an approximate guide and must be carefully checked by and verified by any Prospective Purchaser. These particulars form no part of any sale contract. Any Prospective Purchaser should obtain verification of all legal and factual matters and information from their Solicitor, Licensed Conveyancer or Surveyors as appropriate.
















